Bespoke Kitchens

Design. Create. Install.

Your Journey of Discovery Using Creative Design to Realize Your Dream Kitchen-Dining-Living Space

CALL or EMAIL US TODAY

Kitchen Concept Design

At Kitchen Odyssey, we will guide you on a journey of discovery for new kitchen design ideas that are truly unique and purpose designed for your lifestyle and home.

When it comes to creating a kitchen, kitchen-diner or open-living/cooking space in your home, the principle starting point for the alterations should be the construction of an holistic, fully inclusive design brief.

Your designer will have a comprehensive knowledge of interiors covering multiple disciplines; understanding spaces and layout, form and function, cooking processes, storage practicalities, family structure and criteria for entertaining; whilst catering for many different styles of home and the unique individualism of every customer.

We regularly provide our design services prior to an architect’s involvement, in order to fully express an individuals specific requirements for kitchen optimization.

A new kitchen-diner extention, or inside-outside-dining capability, is more likely to be successful if we know in advance that the kitchen is optimised.

That means making sure the dimensions are not to small or too big. Just 3cm too small for a new build or extension or remodel, is enough to prevent the perfect kitchen from materializing. But we are also proponents of efficiency and optimisation. Which means preventing a bloated design scope, budget and timescale.

So let us quickly sketch out your space while we sit next to you; talking through ideas, assessing your options and helping you get on the right path at the beginning of the process.

hand sketching your kitchen

Great kitchens cater to your aesthetic preferences but also your practical needs, as well as preferred cooking practices, your lifestyle and the size of your family and visiting groups of friends.

The bespoke design proposal needs to draw from as many sources as possible, so we work with a large range of manufacturers that fit our exacting standards for quality.

Our journey starts with an honest dialogue. This dialogue continues in the form of discussions, sketches, diagrams, and visual presentations.

Copious hand-drawn sketches and computer visuals thoughout the process, keeps the client fully informed for fast and efficient decision making - so important when transforming the intangible into the tangible.

couple cooking together

About You & Us

  • You want inspiration and innovation for your new designer kitchen.
  • You’d like to introduce unique colours, special materials and bespoke features for a personalized aesthetic.
  • You actually enjoy cooking and baking ‐ so you know how you like to work.
  • Therefore, you want to incorporate the latest appliances, fittings, mechanisms and ancillaries.
  • Your living space needs to harmoniously integrate with the kitchen.
  • You’re excited about a spacious, professionally planned, multi-purpose living & cooking space.
  • And you’d really like help with visualizing ALL your options, quickly and easily and in the convenience of your home.
  • We can help you achieve all this and more ...

About Us and Who We Help

... if you'd like to jump ahead to an example Virtual Reality modelled interior, to see the computer graphics we use, click here for VR example ...

Process

Consultation

Call us on 01234 880746, drop us an email info AT kitchenodyssey .co .uk, or send us your architects plan or your sketch. Don't delay, contact us today to start a no-obligation simple conversation and tell us what you'd like to achieve.

Consultation Process
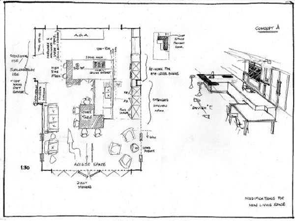
Concept Design

During a visit to your home, we get to understand your lifestyle and living arrangements, cooking and storage requirements. We will start sketching and discussing different themes right there and then.

Concept Design Process
Design Development

Using copious and varied communication techniques, verbal and visual, we aim to have you fully comprehend the proposed solution, with detailed estimates and quotations and supporting installation package.

Design Development Process
Production, Installation and Sign-off etc.

Now is the exciting time to put everything into production ready for delivery on schedule, followed by a trouble free installation and then a happy review of the beautiful end result, as well as a few photo's to record the occasion.

Installation Process

Collections

contemporary classic kitchen
Contemporary Classic

A modern take on Classic with timeless details and finishes for the modern home.

Explore Classic Kitchens
urban metro style kitchen
Urban Metro

Using warm inviting materials to lift an industrial aesthetic for daily home life.

Explore Urban Metro Kitchens
painted classic style kitchen
Painted Classic

Painted classic style furniture themes from throughout history, will always deliver a quality home interior.

Explore Painted Kitchens

Testimonial

KITCHEN Odyssey

Helping you visualize your new kitchen design quickly and easily. Making sure you have the biggest choice available by working with selected national and international quality manufacturers. Ensuring you are always in control of the process using latest technology and tools. And ensuring great service from an experienced team using best practice communications and documentation.

Contact Us

Covering Bedfordshire, Hertfordshire, Buckinghamshire, Northamptonshire, Cambridgeshire, and North London areas.

Links

For smaller kitchen works and cabinet door upgrades ...

For complete interior design full-scale projects for houses, appartments, offices, holiday get-aways, boats, planes and trains ...

For design of furniture and interior features for residential and commercial - eg. outside kitchens, client entertainment stations, etc ...

Quality

We work with the best suppliers including, Bosch, Falcon, Fisher & Paykel, Franke, Gaggenau, InSinkErator, KitchenAid, Neff, Perrin & Rowe, Rangemaster, SubZero and Wolf.

(links...)

Bosch Logo Falcon Logo Fisher Paykel Logo Franke Logo Gaggenau Logo ISE Logo KitchenAid Logo Neff Logo Perrin Rowe Logo Rangemaster Logo Subzero Logo Wolf Logo