Production Order Process

Orders Placed & Schedules Set

Your dream kitchen starts to become reality when all the detailed drawings are signed off and the ordering paperwork completed with a full spec-sheet, total project spend authorized, and we proceed to the build stage. All products are placed on order and items that are bespoke or to be custom built, have designs fully detailed with component and general assembly drawings.

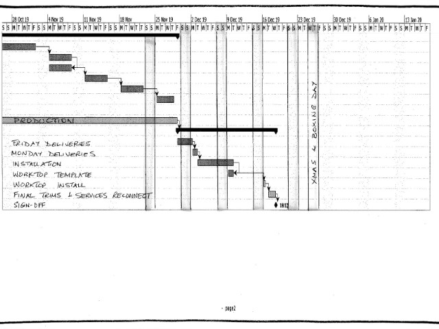
At the same time, we finalize the project plan with scheduling details from all the stakeholders in the process. You may only have us provide a supplier management service. But if you’ve chosen full project management (the term PM is commonly misused – please enquire for confirmation) then we will liaise with architect, builder, trades, interior designer, suppliers and fitters for your peace of mind and convenience.

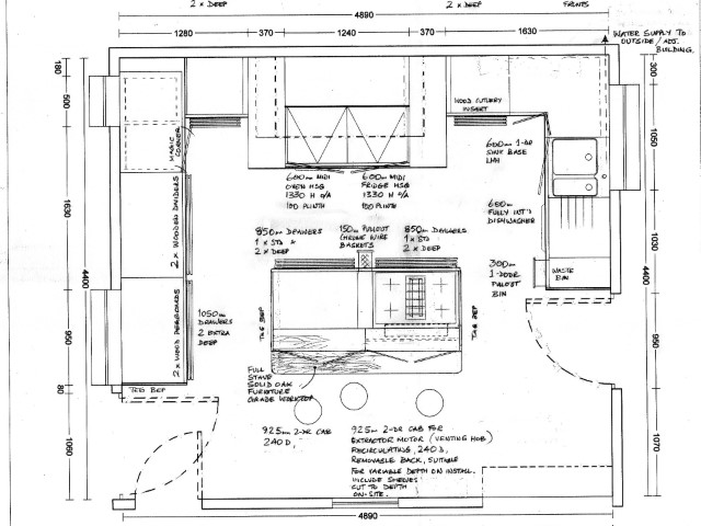
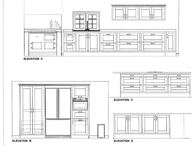
See below control documents and details for production and installation

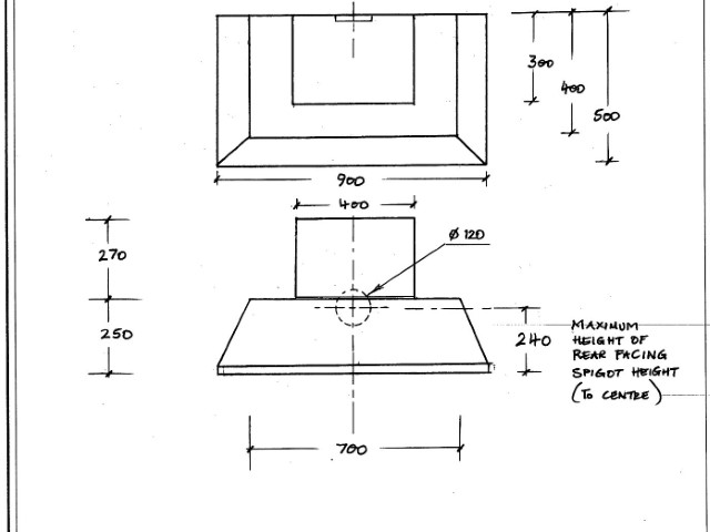
kitchen detail drawing 01
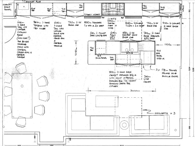
kitchen detail drawing 02
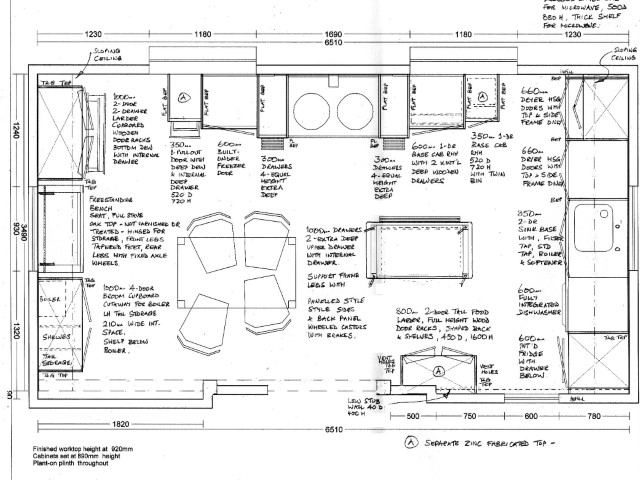
kitchen detail drawing 03
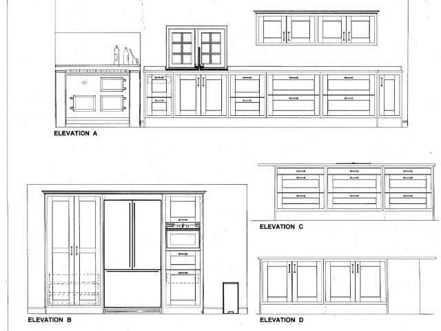
kitchen detail drawing 04
kitchen detail drawing 05
kitchen detail drawing 06
kitchen detail drawing 07
kitchen detail drawing 08
kitchen detail drawing 09
kitchen detail drawing 10
kitchen detail drawing 11
kitchen detail drawing 12
kitchen detail drawing 13
kitchen detail drawing 14
kitchen detail drawing 15
kitchen detail drawing 16
kitchen detail drawing 17
kitchen detail drawing 18
kitchen detail drawing 19
kitchen detail drawing 20
kitchen detail drawing 21
kitchen detail drawing 22
kitchen detail drawing 23
kitchen detail drawing 24
kitchen detail drawing 25
kitchen detail drawing 26
kitchen detail drawing 27
Back to Process Main Page

KITCHEN Odyssey

Helping you visualize your new kitchen design quickly and easily. Making sure you have the biggest choice available by working with selected national and international quality manufacturers. Ensuring you are always in control of the process using latest technology and tools. And ensuring great service from an experienced team using best practice communications and documentation.

Contact Us

Covering Bedfordshire, Hertfordshire, Buckinghamshire, Northamptonshire, Cambridgeshire, and North London areas.

Links

For smaller kitchen works and cabinet door upgrades ...

For complete interior design full-scale projects for houses, appartments, offices, holiday get-aways, boats, planes and trains ...

For design of furniture and interior features for residential and commercial - eg. outside kitchens, client entertainment stations, etc ...

Quality

We work with the best suppliers including, Bosch, Falcon, Fisher & Paykel, Franke, Gaggenau, InSinkErator, KitchenAid, Neff, Perrin & Rowe, Rangemaster, SubZero and Wolf.

(links...)

Bosch Logo Falcon Logo Fisher Paykel Logo Franke Logo Gaggenau Logo ISE Logo KitchenAid Logo Neff Logo Perrin Rowe Logo Rangemaster Logo Subzero Logo Wolf Logo